A custom sauna in your home, built right.
Designed, supplied, and coordinated by Long Island's only dedicated sauna team. From first conversation to first session in 8–12 weeks. You make one decision: yes.
Recent Long Island builds.
See All Builds →





Turnkey. Designed by specialists.
That's the work. Here's how we do it. We design your sauna, supply every material, and coordinate the install through our partner installer — overseen by our team from first measurement to final orientation. We coordinate directly with your electrician (or refer one we've worked with) so you're never middlemanning trades. You don't need to become a sauna expert. You say yes. We make sure the rest happens right.
Don't take our word for it. Take theirs.
Read all reviews on Google →
From here to finished sauna.
Three steps. Most homeowners are surprised how simple it actually is.
Tell Us About Your Space
Share your room dimensions, location, and timeline. We'll have a quick conversation about what you're picturing and confirm the right approach for your home.
Get Your Free Design + Estimate
Within 48 hours, you receive a custom design of your sauna — bench layout, heater placement, ventilation, electrical — with a detailed itemized estimate.
Site Visit, Then Build
We come out for final measurements and answer every question. Once you're ready, we coordinate the build. Most projects complete in 8–12 weeks.
The complete build.
Nothing left for you to source, guess, or figure out.
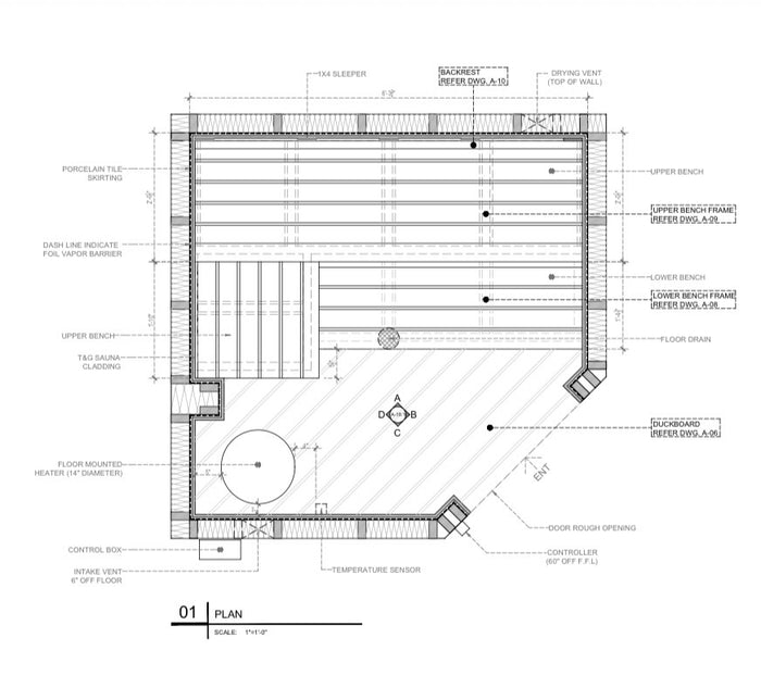
Custom Design
A detailed design of your sauna — bench layout, depths, heights, vent locations, heater placement, electrical routes — tailored to your exact room.
All Premium Materials
Sauna-grade wood, heater, pre-hung door, bench and backrest materials, vapor barrier, hardware, lighting, accessories — everything sourced and supplied.
Coordinated Installation
We assign a vetted partner installer to your project and oversee every detail from scheduling to walkthrough. You deal with one team: us.
Electrical Coordination
We work directly with your licensed electrician (or refer one we've used before) so you're never middlemanning trades.
Post-Install Orientation
Once your sauna is in, we walk you through how to use it — heat schedules, löyly technique, maintenance, controls — so you get every benefit from day one.
2-Year Warranty
The heater and wood are backed by a full 2-year ECS warranty. If anything fails, we replace it. No fine print.
One thing. Done right.
Sauna Specialists
This is all we do. Custom traditional saunas, every day. Not kitchens. Not bathrooms. Not general contracting.
Local to Long Island
We design, supply, and oversee installs across Nassau and Suffolk. Local team. Local references. Real accountability.
Turnkey Solution
One package. One point of contact. We handle design, materials, install coordination, and electrical — so you don't have to.
Ready to talk about yours?
Book Your Free Design Call →Most people think a sauna is something you add to a home. We think it's something a home isn't quite finished without.
We only take 8 new builds per month.
Every project is designed from scratch and overseen personally by our team. To protect that standard, we don't go beyond eight. If you're thinking about a build for this year, the conversation worth having is now.
What clients send us once it's in their home.
Unfiltered messages from homeowners who built with us. No edits. No marketing speak.








This is the part nobody tells you — once it's in your house, you'll wonder why you waited.
Frequently Asked
Most of our custom Long Island sauna projects are completed for $20,000 to $30,000, depending on room size, wood species, heater selection, and design features. Larger or higher-spec builds run higher. You'll receive a detailed itemized estimate within 48 hours of submitting your project details.
It's the question we hear most often. Honest answer: almost every client we've built for ends up using their sauna 4–7 times a week within the first month, and most tell us they wish they'd done it years sooner. We design the room and the daily experience to be frictionless — pre-set heat schedules, fast warm-up, easy access from inside the home — so it becomes part of how you wind down.
From first conversation to your first sauna session is typically 8–12 weeks on Long Island. You'll receive your free design and estimate within 48 hours. Once you say yes, materials arrive within about four weeks, and the build itself usually takes three to five days.
Yes. On Long Island, you make one decision: yes. We design your sauna, supply every material, coordinate the installer, and work directly with your electrician. You don't need to source materials, find an installer, or middleman trades. The whole project runs through us.
Electrical work must be performed by a licensed electrician (sauna heaters require dedicated high-amp circuits). You can use your own electrician — we coordinate directly with them so you don't have to middleman the back-and-forth. If you don't have one, we'll refer a licensed electrician who has wired saunas for us before.
The heater and wood are backed by a 2-year ECS warranty. If anything fails within that window, we replace it. Installation labor is covered separately by the installer team.
Everything we do is rooted in Nordic tradition — simplicity, purity, and real heat. The landmark studies demonstrating sauna's cardiovascular benefits were conducted on traditional Nordic saunas operating above 176°F. Infrared rooms typically don't reach above 150°F and strip away the two things that make a sauna a sauna: real steam (löyly) and high heat.
Get your free design + estimate.
Submit your details and you'll receive a custom design and full estimate within 48 hours. No pressure. No sales calls until you're ready.
Tell us about your project
Five quick fields. Fields marked with * are required.
Got it — we're on it.
Thanks for sharing your project. We'll review your details and send back a custom design and full estimate within 48 hours.


